/
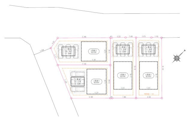
【区画図】
- 物件名
- 〇八重瀬町伊覇 売土地【全4区画】
- 価格
- 2,398万円~2,598万円
- 土地面積
- 167.57㎡~171.34㎡
- 築年月
- -(-)
- 総区画数
- 4区画
- 設備条件
-
- 設備(その他)
-
-
-
- 駐車場/月額
- -/-
- 土地権利
- 所有権
- 国土法届出
- 不要
- 用途地域
- 第一種低層住居専用
- 区画数
- 4区画 / 4戸
- 管理形態
- -
- 管理員の勤務形態
- -
- 管理会社
- -
- 取引態様
- 専任媒介
- 引渡し
- 相談
- 開発許可番号
- -
-
市役所・区役所
八重瀬町役場
773m(10分)
-
小学校
八重瀬町立東風平小学校
1309m(17分)
-
中学校
八重瀬町立東風平中学校
1549m(20分)
〇八重瀬町伊覇 売土地【全4区画】の基本情報
〇八重瀬町伊覇 売土地【全4区画】の詳細情報
〇八重瀬町伊覇 売土地【全4区画】で募集中の物件
周辺施設
よく見られている物件
〇八重瀬町伊覇 売土地【全4区画】
お気軽にお問い合わせください
大鏡建設株式会社(運営店舗:ピタットハウス宜野湾店)
098-898-5248
9:30~17:00
(休:第2・4水曜/第1・3・5土曜/日祝)

