〇八重瀬町伊覇 売土地【全4区画】 1号地
2,598万円
沖縄都市モノレール「首里」駅徒歩95分
那覇バス/琉球バス「県営屋宜原団地入口」バス停
沖縄バス「県営屋宜原団地入口」バス停
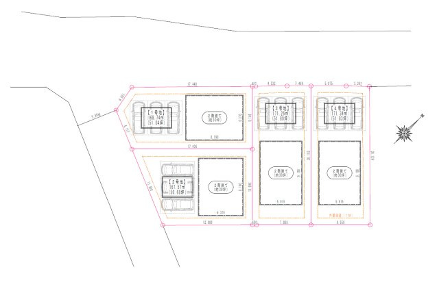
【区画図】
- 価格
- 2,598万円
- 坪単価
- 50.9万円(51.04坪)
- 土地面積(坪数)
- 168.74㎡(51.04坪)
- 建ぺい率 / 容積率
- 50% / 150%
- 販売区画数
- 4区画
- 総区画数
- 4区画
- 土地面積(坪数)
- 168.74㎡(51.04坪)
- 坪単価
- 50.9万円
- 私道負担面積
割合 -
-
- セットバック
- 無
- 建ぺい率 /
容積率 - 50% / 150%
- 高圧線下面積
- -
- 傾斜地部分面積
- -
- 路地状敷地
- -
- 地目
- 畑
- 地勢
- 平坦
- 造成工事
完了予定 - -
- 土地権利
- 所有権
- 建築条件
- -
- 都市計画
- 市街化区域
- 用途地域
- 第一種低層住居専用
- 接道状況
- 角地(北西 公道 6.0m 間口 17.4m)(南西 公道 6.0m 間口 10.1m)
- 国土法届出要否
- 不要
- 最適用途
- 住宅用地
- その他
法令上の制限 - -
- 取引態様
- 専任媒介
- 現況
- 更地
- 引渡条件
- -
- 引渡時期
- 相談
- 開発許可番号
- -
- 取引条件の
有効期限 - 2026年03月19日
- 設備条件
-
- 公営水道 / 浄化槽排水
- 設備(その他)
-
-
-
- 物件番号
- 99049957
- 管理コード
- -
- 情報更新日
- 2026年03月05日
- 次回更新予定日
- 2026年03月19日
- 取扱会社
-
- 大鏡建設株式会社(運営店舗:ピタットハウス宜野湾店)
- 沖縄県宜野湾市字佐真下37番地 B−1F
- TEL:098-898-5248
- 沖縄県知事 (5) 第003665号
- 備考
- ≪あなたにピタッと≫
私たちピタットハウスはお客様の事を思い、
ライフスタイルに合った最適なご提案をすることを心掛けています。
地域密着でご要望に対して`Face to Face`で心のこもったサービスをご提供いたします。 -
市役所・区役所
八重瀬町役場
773m(10分)
-
小学校
八重瀬町立東風平小学校
1309m(17分)
-
中学校
八重瀬町立東風平中学校
1549m(20分)
- 月々の支払額
- 円
- 購入希望物件価格
-
万円
- 頭金
-
万円
- 金利
-
%
- 返済額(ボーナス1回分)
-
万円
- 返済期間
-
年
セールスポイント
【1号棟】八重瀬町伊覇の区画整理地内に全4区画の売土地が出来ました!!住宅用地として、お好きな住宅メーカーで建築可能です♪角地の区画の為出入り等スムーズに出来ます。2区画まとめての購入も可能です!
基本情報
設備条件
その他
周辺施設
支払いシミュレーション
※ボーナスは自動で年2回分で計算されます。
よく見られている物件
〇八重瀬町伊覇 売土地【全4区画】
2,598万円
-(168.74㎡)
お気軽にお問い合わせください
大鏡建設株式会社(運営店舗:ピタットハウス宜野湾店)
098-898-5248
9:30~17:00
(休:第2・4水曜/第1・3・5土曜/日祝)

