【外観パース】 ※現況と異なる場合は、現況を優先させていただきます。
- 建物面積
- 94.10㎡
- 築年月
- 2025年12月(予定)
-
バストイレ別
-
室内洗濯機置場
- 販売戸数
- -
- 総戸数
- -
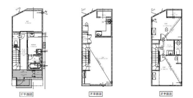
- 間取り / 詳細
- 2LDK+S(納戸)
LDK 18.7帖/洋室 7.0帖/洋室 6.7帖/S 5.0帖 - 向き
- -
- 建物面積(坪数)
- 94.10㎡(28.46坪)
- 土地面積(坪数)
- 85.61㎡(25.89坪)
- 建ぺい率 /
容積率 - 60%/200%
- 築年月
- 2025年12月(予定)
- 駐車場 /
月額料金 - 有(2台) -
- 土地権利
- 所有権
- 土地
(敷金 / 保証金) - - / -
- 建物構造
- 木造 / 3階建
- 傾斜地部分面積
- -
- 路地状敷地
- -
- 私道負担面積
- -
- セットバック
- 無
- 高圧線下面積
- -
- 施工会社
- (株)エッジ・ファクトリー
- 用途地域
- 第一種住居
- 地目 / 地勢
- 宅地 / -
- 接道状況
- 一方(南 5.0m)
- 国土法届出要否
- 不要
- 都市計画
- 市街化区域
- 総区画数 /
販売区画数 - -/-
- 現況
- 未完成
- その他
法令上の制限 - -
- 取引態様
- 仲介
- 引渡し
- 相談
- 取引条件の
有効期限 - 2026年03月19日
- 設備条件
-
- 室内洗濯機置場 / フローリング / プロパンガス / 公営水道 / 公共下水 / 24時間換気システム / 駐車2台可 / IHクッキングヒーター / システムキッチン / バス・トイレ別 / 温水洗浄便座 / トイレ2ヶ所 / CS / BS
- 設備(その他)
-
-
-
- 物件番号
- 99606607
- 管理コード
- -
- 建築確認番号
- 第00000号
- 情報更新日
- 2026年03月05日
- 次回更新予定日
- 2026年03月19日
- 取扱会社
-
- 大鏡建設株式会社(運営店舗:ピタットハウス宜野湾店)
- 沖縄県宜野湾市字佐真下37番地 B−1F
- TEL:098-898-5248
- 沖縄県知事 (5) 第003665号
- 備考
- ※現況と異なる場合は、現況を優先させていただきます。
建築確認番号については確認中でございます。
≪あなたにピタッと≫
私たちピタットハウスはお客様の事を思い、
ライフスタイルに合った最適なご提案をすることを心掛けています。
地域密着でご要望に対して`Face to Face`で心のこもったサービスをご提供いたします。 -
コンビニエンスストア
ローソン 浦添宮城六丁目店
302m(4分)
-
コンビニエンスストア
沖縄ファミリーマート 勢理客二丁目店
641m(9分)
-
スーパー
タウンプラザかねひでパイプライン内間市場
654m(9分)
-
スーパー
サンエー V21みやぎ食品館
668m(9分)
-
小学校
浦添市立神森小学校
712m(9分)
-
中学校
浦添市立神森中学校
1053m(14分)
- 月々の支払額
- 円
- 購入希望物件価格
-
万円
- 頭金
-
万円
- 金利
-
%
- 返済額(ボーナス1回分)
-
万円
- 返済期間
-
年
物件の特徴
セールスポイント
新生活を失敗せず、スタートさせたいならこちらの「エスロンメル宮城 B棟」はいかがでしょうか!ガス乾燥機やIHコンロで設備も充実してます♪
ポイント
基本情報
設備条件
その他
周辺施設
支払いシミュレーション
※ボーナスは自動で年2回分で計算されます。
近隣の物件
よく見られている物件
エスロンメル宮城 B棟
4,980万円
-
2LDK+S(納戸)(94.10㎡)
お気軽にお問い合わせください
大鏡建設株式会社(運営店舗:ピタットハウス宜野湾店)
098-898-5248
9:30~17:00
(休:第2・4水曜/第1・3・5土曜/日祝)

